반응형
반갑습니다 장전부동산입니다 오늘은 부산개원입지 금정구 장전동 부산대역 도보 3분 거리 정성메디컬빌딩 임대 안내를 하도록 하겠습니다 정성메디컬빌딩은 2025.12.26 사용승인된 신축메디컬빌딩으로 자체 주차 총 18대 + 추가 주차부지 확보(예정) + 도보 1분 거리 부산대역 공영주차장이 있어 주차에 대한 걱정은 하지 않으셔도 되는 메디컬빌딩입니다 현장 기준 반경 1KM ~ 3KM 내 거주 인구는 충분하며 부산대 학생들도 예비 수요가 될 수 있는 만큼 내과, 이비인후과, 소아청소년과, 정형외과, 치과, 안과, 피부과, 한의원 등 다양한 병원 원장님을 모시고자 하니 부산 금정구 내에서 병의원 개원을 계획 중이시라면 정성메디컬빌딩 입지 검토해 보시길 바랍니다

*장전부동산에서 확보한 매물 중 체결된 병의원 계약은 원장님들의 중개보수가 발생하지 않습니다*
★중개대상물 정보★
| 용도지역 | 준주거지역 외 1 |
| 지목 | 대 |
| 대지면적 | 367.6제곱미터(약 111평형) |
| 건축물 주용도 | 제1종근린생활시설 |
| 건축물 규모 | 지하 1층 / 지상 9층 |
| 사용승인일 | 2025.12.26 |
| 주차대수 | 자주식 옥외 1대 + 기계식 옥내 17대 |
| 승강기 | 1대 |
| 임대층 | 저층, 중층, 고층 *각층 건축물 용도 - 제1종근린생활시설* |
| 방향 | 남향(주출입구 기준) |
| 1개층 전용면적(2층 ~ 8층) | 214.73제곱미터(약 65평형) |
| 보증금 / 월세 (1개층) |
1억원 / 400만원 ~ 420만원 부가세 별도 |
| 관리비 | 입주 전 미정*확정 시 고지* |
| 렌탈프리 | 문의 |
| 추천 병원 | 내과, 이비인후과, 성형외과, 산부인과, 피부과, 안과, 정형외과, 치과, 재활의학과, 통증의학과, 한의원 등 |
| 개원 가능일 | 즉시 가능 |
| 비고 | 부산대역 공영주차장 도보 1분거리 위치 |
소재지

정성메디컬빌딩은 부산광역시 금정구 장전동 413-50에 위치하고 있습니다
현장 기준 반경 1KM ~ 3KM 내 거주 인구(추정)



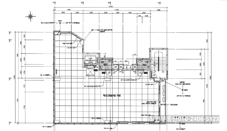
평면도(저층 / 중층) *2층 ~ 8층 구조는 거의 동일합니다*

현장 사진 및 영상(촬영층 - 저층 / 중층)



장전부동산은 부산 / 경남 메디컬 전문 부동산으로 그동안 완성한 메디컬 경험을 바탕으로 메디컬에 특화된 계약 내용 조율 및 계약서 작성이 가능합니다 믿고 맡겨주시면 만족스러운 결과를 드릴 수 있도록 하겠습니다
장전부동산중개사무소 대표 이동혁
등록번호 : 제 26410-2019-00030 호
부산광역시 금정구 금강로347번길46
1층 102호(장전동)
010-2406-5123/051-518-8880
반응형
'메디컬매물' 카테고리의 다른 글
| 부산 해운대구 반여동 시장 인근 메디컬 임대 치과 정형외과 개원 추천 (1) | 2026.03.14 |
|---|---|
| 부산개원입지 대원동 쿼크1742 3층 전용 235평형 메디컬 임대 안내 (0) | 2026.02.09 |
| 부산개원입지 남구 대연동 유엔메디컬빌딩 중층 전용 85평형 임대 (0) | 2025.12.07 |
| 부산 동래구 수안동 동래시장 인근 로덴빌딩 메디컬 임대 (0) | 2025.12.04 |
| 김해시 주촌면 천곡리 개원입지 오케이빌딩 3층 메디컬 임대 (1) | 2025.11.17 |